37D-0502

Solgt

Status

Totalpris

Pris

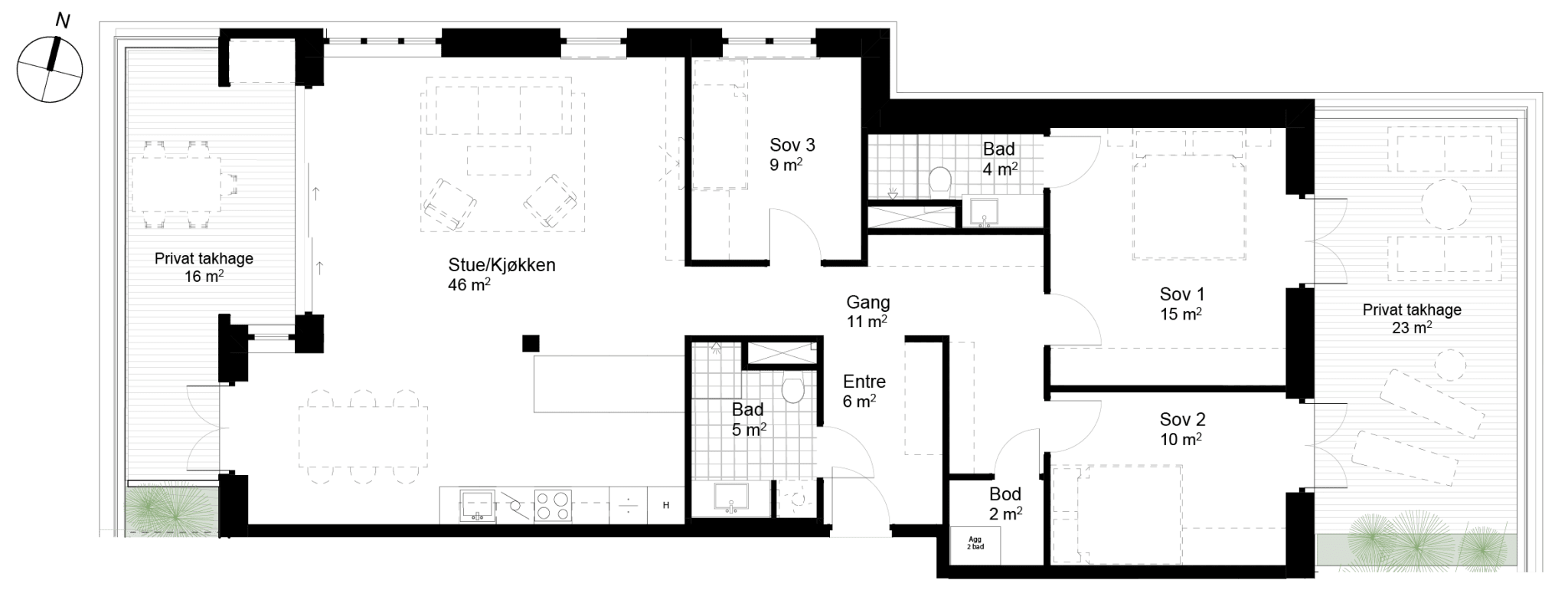
TBA m²

Soverom

BRA

BRA-i

BRA-e

Etasje

Omkostninger

Felleskostnad

Tilbake til Boligvelger