Timbre
Boligvelger
Boligene
Prospekt
Beliggenhet
Dokumenter
Siste nytt
Galleri
Meld interesse
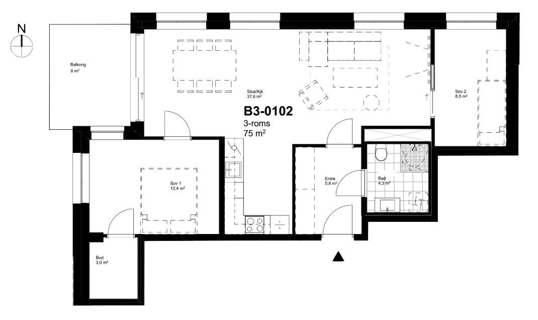
B3-102
Kjøp
Status
Ledig
Totalpris
6 983 700
Pris
6 950 000
TBA m²
8
Soverom
2
BRA
80
BRA-i
75
BRA-e
5
Etasje
1
Omkostninger
33 700
Felleskostnad
4 494
Vedlegg
B3-0102 - Kontraktstegning
Kontakt megler
Marius Løkken
Eiendomsmegler
+47 456 05 058
Marius@roislandco.no
Lars Petter Hansrud
Eiendomsmegler
+47 952 03 993
lars.petter.hansrud@roislandco.no
Powered by Plyo
Tilbake til Boligvelger