Timbre
Boligvelger
Boligene
Prospekt
Beliggenhet
Dokumenter
Siste nytt
Galleri
Meld interesse
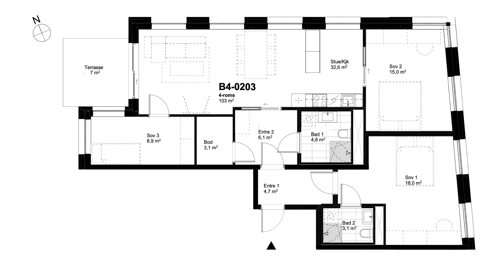
B4-203
Kjøp
Status
Ledig
Totalpris
9 945 440
Pris
9 900 000
TBA m²
7
Soverom
3
BRA
107
BRA-i
102
BRA-e
5
Etasje
2
Omkostninger
45 440
Felleskostnad
5 657
Vedlegg
B4-0203 - Kontraktstegning
Kontakt megler
Marius Løkken
Eiendomsmegler
+47 456 05 058
Marius@roislandco.no
Lars Petter Hansrud
Eiendomsmegler
+47 952 03 993
lars.petter.hansrud@roislandco.no
Powered by Plyo
Tilbake til Boligvelger