Timbre
Boligvelger
Boligene
Prospekt
Beliggenhet
Dokumenter
Siste nytt
Galleri
Meld interesse
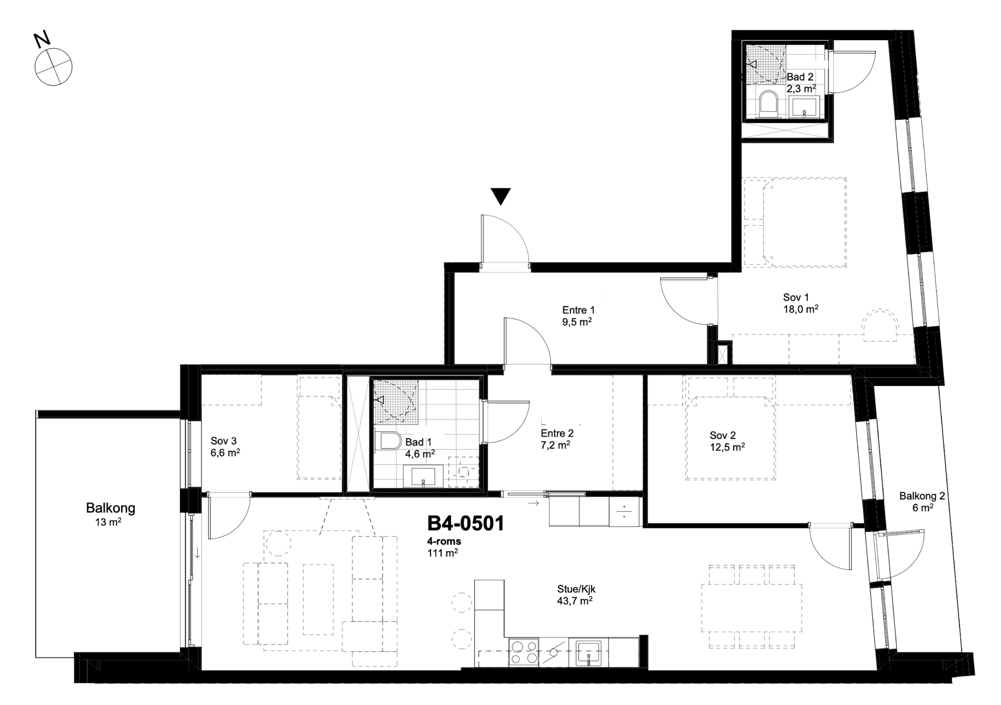
B4-501
Kjøp
Status
Ledig
Totalpris
11 649 360
Pris
11 600 000
TBA m²
19
Soverom
3
BRA
116
BRA-i
111
BRA-e
5
Etasje
5
Omkostninger
49 360
Felleskostnad
6 071
Vedlegg
B4-0501- Kontraktstegning
Kontakt megler
Marius Løkken
Eiendomsmegler
+47 456 05 058
Marius@roislandco.no
Lars Petter Hansrud
Eiendomsmegler
+47 952 03 993
lars.petter.hansrud@roislandco.no
Powered by Plyo
Tilbake til Boligvelger