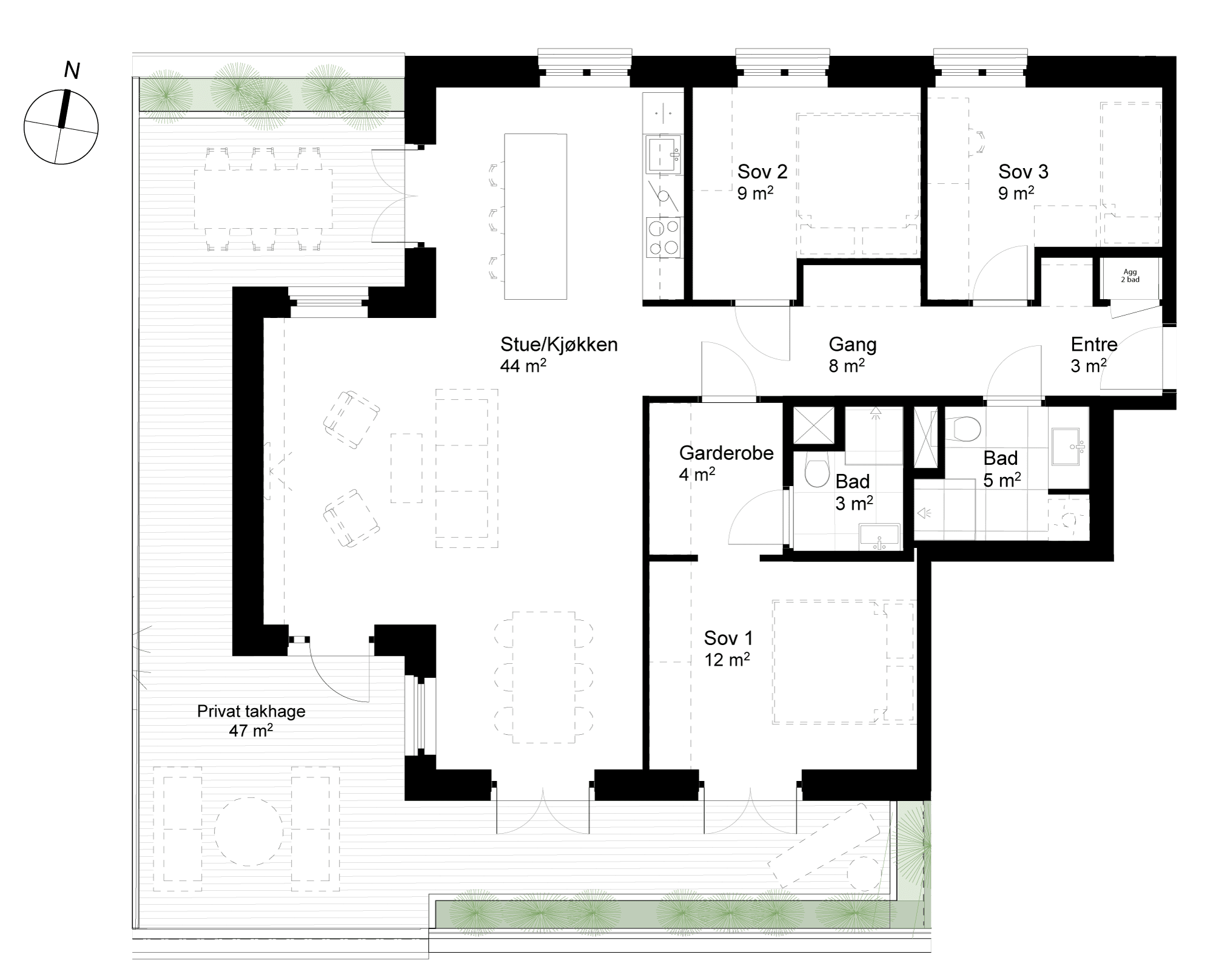
37B-0502

Status

Totalpris

Pris

TBA m²

Soverom

BRA

BRA-i

BRA-e

Etasje

Omkostninger

Felleskostnad

Tilbake til Boligvelger