Sentrumskvartalet
Boligvelger
Boligene
Galleri
Dokumenter
Nyheter
Meld interesse
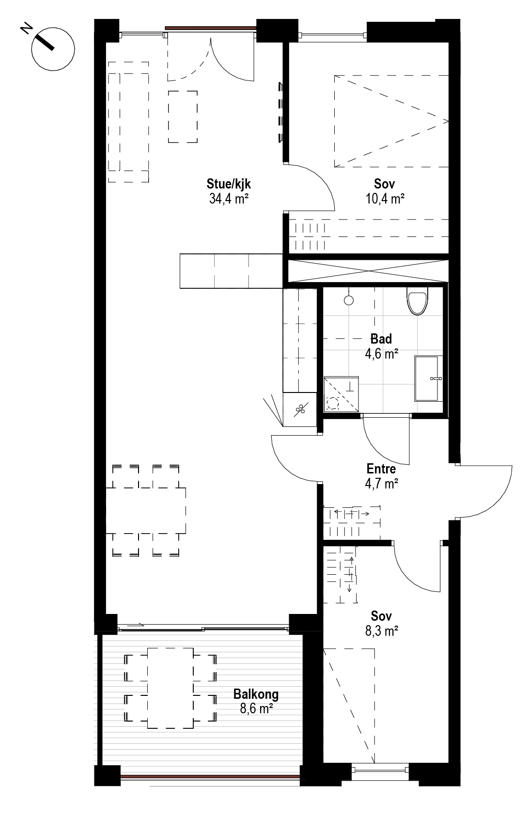
B1.3-41
Meld interesse
Gi bud
Status
Ledig
Totalpris
6 437 700
Pris
6 410 000
TBA m²
8,6
Soverom
2
BRA
70
BRA-i
65
BRA-e
5
Etasje
4
Omkostninger
27 700
Felleskostnader
3 880
Kontraktstegning
KONTRAKT_B1 3-41
Galleri
Meld interesse
Fyll inn navn
Fyll inn telefonnummer
Fyll inn e-post
Jeg ønsker å bli kontaktet i samtykke med denne
personvernerklæringen
Jeg ønsker å bli kontaktet av prosjektets eiendomsmegler Attentus Eiendomsmegling
Send
Powered by Plyo
Tilbake til Boligvelger