Sentrumskvartalet
Boligvelger
Boligene
Galleri
Dokumenter
Nyheter
Meld interesse
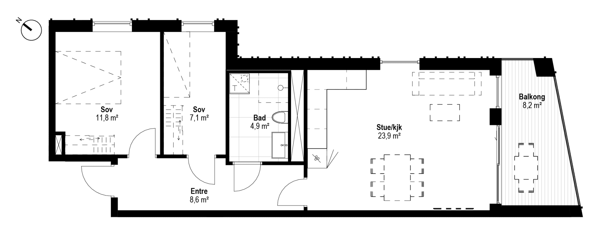
B2-41
Meld interesse
Gi bud
Status
Ledig
Totalpris
6 214 000
Pris
6 190 000
TBA m²
8,2
Soverom
2
BRA
64
BRA-i
59
BRA-e
5
Etasje
4
Omkostninger
24 000
Felleskostnader
3 568
Kontraktstegning
KONTRAKT_B2 41
Galleri
Meld interesse
Fyll inn navn
Fyll inn telefonnummer
Fyll inn e-post
Jeg ønsker å bli kontaktet i samtykke med denne
personvernerklæringen
Jeg ønsker å bli kontaktet av prosjektets eiendomsmegler Attentus Eiendomsmegling
Send
Powered by Plyo
Tilbake til Boligvelger